Gewerbeeinheit an der Osttangente!
21423 Winsen (Luhe), Halle zur Miete
Objektdaten
-
Objekt-ID44338
-
ObjekttypenHalle, Halle/Lager/Produktion
-
Adresse21423 Winsen (Luhe)
-
Gesamtfläche ca.146 m²
-
Lagerfläche ca.125 m²
-
Zimmer1
-
HeizungsartOfenheizung
-
Wesentlicher EnergieträgerGas
-
Baujahr2015
-
Zustandneuwertig
-
Mieterprovision (gewerblich)3 Nettokaltmieten zzgl. MwSt.
-
Kaution3 Kaltmieten
-
Kaltmiete1.200,00 EUR
-
Nebenkosten110,00 EUR
Ausstattung / Merkmale
- ✓ Zulieferung
Energieausweis
-
EnergieausweistypVerbrauchsausweis
-
Gültig bis24.02.2032
-
GebäudeartNichtwohngebäude
-
Baujahr lt. Energieausweis2015
-
PrimärenergieträgerGas
-
Endenergieverbrauch Strom10,40 kWh/(m²·a)
-
Endenergieverbrauch Wärme29,40 kWh/(m²·a)
Objektbeschreibung
Beschreibung
Diese moderne Gewerbehalle befindet sich in einer der besten Lagen von Winsen (Luhe). Zwischen dem bekannten Gewerbegebiet Torfmoor und der stark frequentierten Osttangente profitieren Sie von hoher Sichtbarkeit sowie einer optimalen Verkehrsanbindung. Über die A39 ist die Halle für Sie, Ihre Mitarbeiter und Lieferanten schnell erreichbar.
Die Einheit setzt sich wie folgt zusammen:
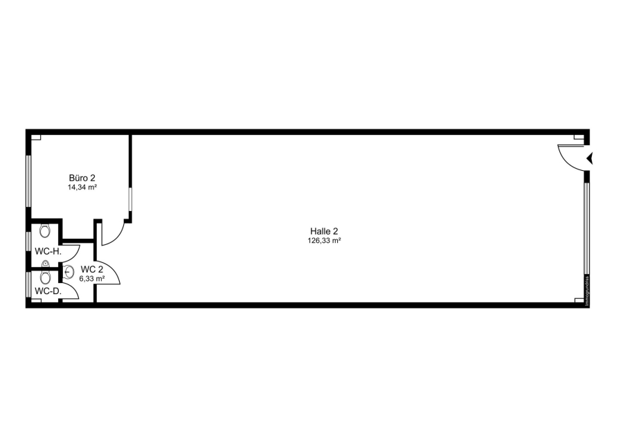
- Kalthalle mit elektrischem Rolltor (ca. 125 m²)
- Beheiztes Büro (ca. 15 m²)
- Sanitäranlagen (ca. 6 m²)
Die Halle überzeugt durch mehrere Vorteile: Mehrere Starkstromanschlüsse sind bereits vorhanden, das große Rolltor ermöglicht eine unkomplizierte Befahrbarkeit, und die Kombination aus Büro- und Hallenfläche schafft effiziente Arbeitsabläufe unter einem Dach.
In direkter Nachbarschaft befinden sich eine Waschstraße, eine Selbstwaschanlage sowie ein Burger King für die schnelle Verpflegung.
Haben wir Ihr Interesse geweckt? Dann melden Sie sich gern für einen Besichtigungstermin!
Ausstattung
- Büro
- Sanitäranlagen für Damen und Herren
- Mehrere Starkstromanschlüsse
- Elektrisches Rolltor
- Kalthalle
- Gute Beleuchtung
Lage
Unmittelbar an einem der Verkehrsknotenpunkte der Stadt Winsen (Luhe), befinden sich diese Halle.
Der Standort zeichnet sich insbesondere durch eine hervorragende Infrastruktur aus. So erreichen Sie nicht nur in weniger als 5 Minuten den Winsener Stadtkern, sondern auch die Autobahnzufahrt der A39 in Richtung der Hansestädte Lüneburg und Hamburg. Somit ist die schnelle Erreichbarkeit wichtiger Absatzmärkte für Ihr Unternehmen garantiert. Die Nähe zum Winsener Hauptbahnhof (HVV) stellt ebenfalls ein unschlagbarer Vorteil dieses Standortes für Ihr Unternehmen dar.
In unmittelbarer Umgebung, im Gewerbegebiet Torfmoor, befinden sich ca. 20 Unternehmen aus den verschiedensten Bereichen, u. a. Aldi, ein Getränkemarkt, ein Schuhladen, ein Autohändler, TÜV Nord usw. Die direkten Nachbarn sind eine hervorragend frequentierte textile Autowaschstraße sowie ein Fastfood-Restaurant.
Weitere Informationen finden Sie unter www.winsen.de
Die ungefähre Position der Immobilie auf Google Maps ansehen (Link auf externe Website)
Sonstige Informationen
Mit diesem Exposé bieten wir Ihnen unsere Maklerdienstleistung an. Alle Angaben zur Immobilie basieren auf den uns vorliegenden Informationen des Eigentümers und wurden mit größter Sorgfalt zusammengestellt. Eine Gewähr für die Richtigkeit und Vollständigkeit übernehmen wir jedoch nicht.
Kommt durch unseren Nachweis oder unsere Vermittlung ein Kaufvertrag zustande, ist die im Exposé angegebene Provision vom Käufer zu zahlen. Diese ist mit Unterzeichnung des Kaufvertrages verdient und fällig.
Zusätzlich zum Kaufpreis sollten Sie die Erwerbsnebenkosten einkalkulieren. Diese betragen in der Regel ca. 2 % für Notar- und Gerichtskosten sowie 5 % Grunderwerbsteuer (je nach Bundesland variabel).
Verbraucherinformation gemäß § 312c BGB i. V. m. Artikel 246 EGBGB:
Diese Informationen dienen der Erfüllung unserer gesetzlichen Informationspflichten, wenn der Maklervertrag mit Schröder Immobilien, Inh. Jörg Schröder, Von-Somnitz-Ring 4a, 21423 Winsen (Luhe), ausschließlich unter Verwendung von Fernkommunikationsmitteln (z. B. Telefon, E-Mail, Online-Formular) zustande kommt.
Widerrufsbelehrung:
Widerrufsrecht
Sie haben das Recht, diesen Maklervertrag innerhalb von 14 Tagen ohne Angabe von Gründen zu widerrufen. Die Widerrufsfrist beträgt 14 Tage ab dem Tag des Vertragsschlusses. Um Ihr Widerrufsrecht auszuüben, müssen Sie uns
Schröder Immobilien
Inhaber Jörg Schröder
Von-Somnitz-Ring 4a
21423 Winsen (Luhe)
Telefon: +49 (0) 4171 88 18 11
E-Mail: info@schroederimmobilien.de
mittels einer eindeutigen Erklärung (z. B. per Brief, Fax oder E-Mail) über Ihren Entschluss, diesen Vertrag zu widerrufen, informieren. Sie können dafür ein von uns bereitgestelltes Muster-Widerrufsformular verwenden, das jedoch nicht vorgeschrieben ist.
Zur Wahrung der Widerrufsfrist reicht es aus, dass Sie die Mitteilung über die Ausübung des Widerrufsrechts vor Ablauf der Frist absenden.
Widerrufsfolgen
Wenn Sie diesen Vertrag widerrufen, haben wir Ihnen alle Zahlungen, die wir von Ihnen erhalten haben, unverzüglich und spätestens binnen 14 Tagen ab dem Tag zurückzuzahlen, an dem die Mitteilung über Ihren Widerruf bei uns eingegangen ist. Für diese Rückzahlung verwenden wir dasselbe Zahlungsmittel, das Sie bei der ursprünglichen Transaktion eingesetzt haben, es sei denn, mit Ihnen wurde ausdrücklich etwas anderes vereinbart. Haben Sie ausdrücklich verlangt, dass wir bereits während der Widerrufsfrist mit unserer Dienstleistung beginnen, so haben Sie uns einen angemessenen Betrag zu zahlen. Dieser entspricht dem Anteil der bereits erbrachten Leistungen bis zu dem Zeitpunkt, an dem Sie uns über die Ausübung des Widerrufsrechts unterrichten, gemessen am Gesamtumfang der im Vertrag vorgesehenen Dienstleistungen.
Besondere Hinweise
Ihr Widerrufsrecht erlischt vorzeitig, wenn wir die beauftragte Maklerleistung vollständig erbracht haben und Sie vor Beginn der Ausführung ausdrücklich zugestimmt sowie bestätigt haben, dass Sie Ihr Widerrufsrecht in diesem Fall verlieren (§ 356 Abs. 4 BGB).
Ende der Widerrufsbelehrung
Kontaktdaten
-
NameHerr Stephan Schulze
-
Personennummer145
-
FirmaSchröder Immobilien
-
AnschriftVon-Somnitz-Ring 4a
21423 Winsen (Luhe) -
E-Mail
-
Telefon
-
Telefon
-
Mobil
-
Fax00494171881833





