Grundstück mit begleiteter Bebauung in Winsen (Luhe) OT Borstel
21423 Winsen (Luhe) OT Borstel, Einfamilienhaus zum Kauf
Objektdaten
-
Objekt-ID1777
-
ObjekttypenEinfamilienhaus, Haus
-
Adresse21423 Winsen (Luhe) OT Borstel
Niedersachsen -
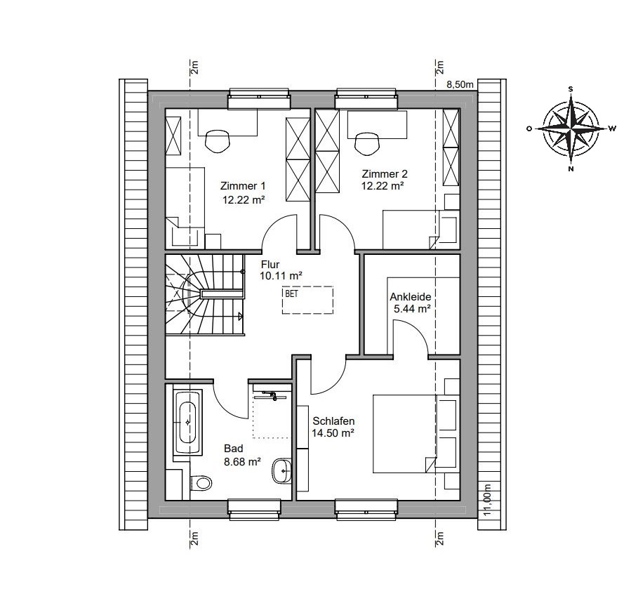
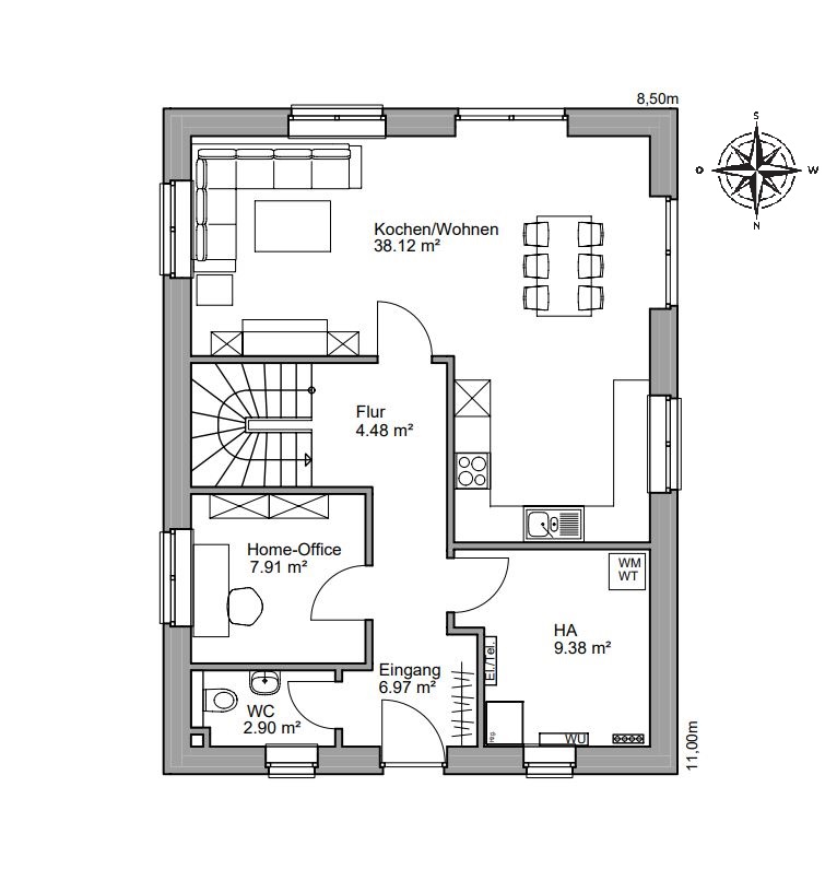
Wohnfläche ca.132 m²
-
Grundstück ca.512 m²
-
Zimmer5
-
Schlafzimmer3
-
Badezimmer1
-
Separate WC1
-
Terrassen1
-
Baujahr2026
-
Ausstattunggehoben
-
BauweiseMassiv
-
Kaufpreis595.000 EUR
Ausstattung / Merkmale
- ✓ Gäste-WC
- ✓ Kein Keller
- ✓ Massivbauweise
- ✓ Separates WC
- ✓ Terrasse
Objektbeschreibung
Beschreibung
In Zusammenarbeit mit der Firma Schröder Bauwerke haben wir das Baugrundstück 10 in Winsen (Luhe) OT Borstel im Kattenstieg projektiert. Im Gesamtpreis in Höhe von € 595.000,- sind die Hausanschlüsse und das Einfamilienhaus in schlüsselfertiger Bauweise enthalten.
Gern lassen wir Ihnen die Baubeschreibung zukommen. Die Fertigstellung ist für Ende 2026 geplant.
Das geplante Einfamilienhaus bietet auf ca. 132 m² Wohnfläche fünf gut geschnittene Räume. Drei Schlafzimmer, ein Büro und ein großzügiges Wohnzimmer schaffen Platz für Familie und Homeoffice. Ein praktischer Hauswirtschaftsraum ergänzt das durchdachte Raumkonzept und sorgt für zusätzlichen Stauraum und Ordnung im Alltag.
Das Grundstück Nr. 10 (siehe Lageplan) überzeugt mit 512 m² Fläche und bietet ausreichend Raum für den Bau eines Einfamilienhauses sowie gegen Aufpreis eines Carports mit Abstellraum. Die kinderfreundliche Umgebung und das großzügige Grundstück schaffen ideale Bedingungen für Familien, mit Platz für einen großen Garten, in dem Kinder ungestört spielen können.
Die Zufahrt erfolgt über eine reine Anwohnerstraße, ideal für Ruhe, Sicherheit,
Familienfreundlichkeit und Naturnähe:
Zögern Sie nicht! Sichern Sie sich dieses attraktive Grundstück mit der Bebauung eines Einfamilienhauses. Für weitere Informationen oder einen Besichtigungstermin stehen wir Ihnen gerne zur Verfügung.
Ausstattung
- Massivbauweise
- 5 Zimmer
- 3 Schlafzimmer
- Büroraum
- Hauswirtschaftsraum
- Wohnzimmer mit offener Küche
- Vollbad
- Gäste-WC
- Vieles mehr ist individuell zu gestalten
Lage
Das Baugrundstück in dieser überschaubaren, familienfreundlichen Baulücke liegt idyllisch in einer ruhigen Wohnstraße des Ortsteils Borstel. Hier vereinen sich ländliches Wohnen und eine hervorragende Infrastruktur. Borstel, im Osten der Stadt Winsen (Luhe), besticht durch seine naturnahe Umgebung und zugleich mit kurzen Wegen zu allen wichtigen Einrichtungen.
Freizeit & Sport: In unmittelbarer Nähe befinden sich der MTV Borstel-Sangenstedt e.V. sowie die Freiwillige Feuerwehr, ideale Orte für sportliche Aktivitäten und gesellschaftliches Engagement.
Bildung & Betreuung: Die Grundschule Borsteler Grund ist ca. 800 m entfernt. Weiterführende Schulen sind in Winsen (Luhe). Der nahegelegene Waldorfkindergarten bietet eine liebevolle Betreuung direkt im Ort.
Einkaufsmöglichkeiten: Der Mines-Markt in der Königsstraße ist in nur fünf Gehminuten erreichbar, perfekt für den täglichen Einkauf oder frische Brötchen am Morgen. Supermärkte wie Rewe, Aldi oder Famila liegen in Winsen (Luhe).
Verkehrsanbindung: Die Lage überzeugt durch kurze Wege in alle Richtungen. Über die Kreisstraße 84 gelangen Sie rasch zur A39 und in die Innenstadt von Winsen (Luhe). Eine Bushaltestelle direkt nebenan bietet Verbindung ins Zentrum. Hamburg und Lüneburg erreichen Sie sowohl mit dem Auto sowie mit der Bahn innerhalb von 30 Minuten.
Die ungefähre Position der Immobilie auf Google Maps ansehen (Link auf externe Website)
Sonstige Informationen
Mit diesem Exposé bieten wir Ihnen unsere Maklerdienstleistung an. Alle Angaben zur Immobilie basieren auf den uns vorliegenden Informationen des Eigentümers und wurden mit größter Sorgfalt zusammengestellt. Eine Gewähr für die Richtigkeit und Vollständigkeit übernehmen wir jedoch nicht.
Kommt durch unseren Nachweis oder unsere Vermittlung ein Kaufvertrag zustande, ist die im Exposé angegebene Provision vom Käufer zu zahlen. Diese ist mit Unterzeichnung des Kaufvertrages verdient und fällig.
Zusätzlich zum Kaufpreis sollten Sie die Erwerbsnebenkosten einkalkulieren. Diese betragen in der Regel ca. 2 % für Notar- und Gerichtskosten sowie 5 % Grunderwerbsteuer (je nach Bundesland variabel).
Verbraucherinformation gemäß § 312c BGB i. V. m. Artikel 246 EGBGB:
Diese Informationen dienen der Erfüllung unserer gesetzlichen Informationspflichten, wenn der Maklervertrag mit Schröder Immobilien, Inh. Jörg Schröder, Von-Somnitz-Ring 4a, 21423 Winsen (Luhe), ausschließlich unter Verwendung von Fernkommunikationsmitteln (z. B. Telefon, E-Mail, Online-Formular) zustande kommt.
Widerrufsbelehrung:
Widerrufsrecht
Sie haben das Recht, diesen Maklervertrag innerhalb von 14 Tagen ohne Angabe von Gründen zu widerrufen. Die Widerrufsfrist beträgt 14 Tage ab dem Tag des Vertragsschlusses. Um Ihr Widerrufsrecht auszuüben, müssen Sie uns
Schröder Immobilien
Inhaber Jörg Schröder
Von-Somnitz-Ring 4a
21423 Winsen (Luhe)
Telefon: +49 (0) 4171 88 18 11
E-Mail: info@schroederimmobilien.de
mittels einer eindeutigen Erklärung (z. B. per Brief, Fax oder E-Mail) über Ihren Entschluss, diesen Vertrag zu widerrufen, informieren. Sie können dafür ein von uns bereitgestelltes Muster-Widerrufsformular verwenden, das jedoch nicht vorgeschrieben ist.
Zur Wahrung der Widerrufsfrist reicht es aus, dass Sie die Mitteilung über die Ausübung des Widerrufsrechts vor Ablauf der Frist absenden.
Widerrufsfolgen
Wenn Sie diesen Vertrag widerrufen, haben wir Ihnen alle Zahlungen, die wir von Ihnen erhalten haben, unverzüglich und spätestens binnen 14 Tagen ab dem Tag zurückzuzahlen, an dem die Mitteilung über Ihren Widerruf bei uns eingegangen ist. Für diese Rückzahlung verwenden wir dasselbe Zahlungsmittel, das Sie bei der ursprünglichen Transaktion eingesetzt haben, es sei denn, mit Ihnen wurde ausdrücklich etwas anderes vereinbart. Haben Sie ausdrücklich verlangt, dass wir bereits während der Widerrufsfrist mit unserer Dienstleistung beginnen, so haben Sie uns einen angemessenen Betrag zu zahlen. Dieser entspricht dem Anteil der bereits erbrachten Leistungen bis zu dem Zeitpunkt, an dem Sie uns über die Ausübung des Widerrufsrechts unterrichten, gemessen am Gesamtumfang der im Vertrag vorgesehenen Dienstleistungen.
Besondere Hinweise
Ihr Widerrufsrecht erlischt vorzeitig, wenn wir die beauftragte Maklerleistung vollständig erbracht haben und Sie vor Beginn der Ausführung ausdrücklich zugestimmt sowie bestätigt haben, dass Sie Ihr Widerrufsrecht in diesem Fall verlieren (§ 356 Abs. 4 BGB).
Ende der Widerrufsbelehrung
Kontaktdaten
-
NameHerr Dipl.-Immobiliensachverst. (DIA) Jan Laubacher
-
FirmaSchröder Immobilien
-
AnschriftVon-Somnitz-Ring 4a
21423 Winsen (Luhe) -
E-Mail
-
Telefon
-
Telefon
-
Mobil
-
Fax00494171881833












