Zwei Zweifamilienhäuser in zentraler Lage von Maschen-Heide
21220 Seevetal, Mehrfamilienhaus zum Kauf
Objektdaten
-
Objekt-ID1799
-
ObjekttypenHaus, Mehrfamilienhaus
-
Adresse21220 Seevetal
Niedersachsen -
Wohneinheiten4
-
Wohnfläche ca.246 m²
-
Grundstück ca.750 m²
-
Balkone1
-
Terrassen3
-
Baujahr1999
-
Zustandgepflegt
-
AusstattungStandard
-
Statusvermietet
-
Außenstellplätze4
-
Käuferprovision3,57 % inkl. MwSt.
-
X-fache Miete33,10
-
Mieteinnahmen (Ist)21.000 EUR pro Jahr
-
Mieteinnahmen (Soll)26.400 EUR pro Jahr
-
Kaufpreis695.000 EUR
Ausstattung / Merkmale
- ✓ Außenstellplatz
- ✓ Balkon
- ✓ Terrasse
Energieausweis
-
EnergieausweistypVerbrauchsausweis
-
Gültig bis06.01.2029
-
GebäudeartWohngebäude
-
Baujahr lt. Energieausweis2013
-
PrimärenergieträgerErdgas leicht
-
Endenergieverbrauch120,20 kWh/(m²·a)
-
EnergieeffizienzklasseD
Objektbeschreibung
Beschreibung
Zum Verkauf stehen zwei gepflegte Zweifamilienhäuser auf einem insgesamt 750 m² großen Grundstück in zentraler Lage von Maschen-Heide, inklusive Stellplätze.
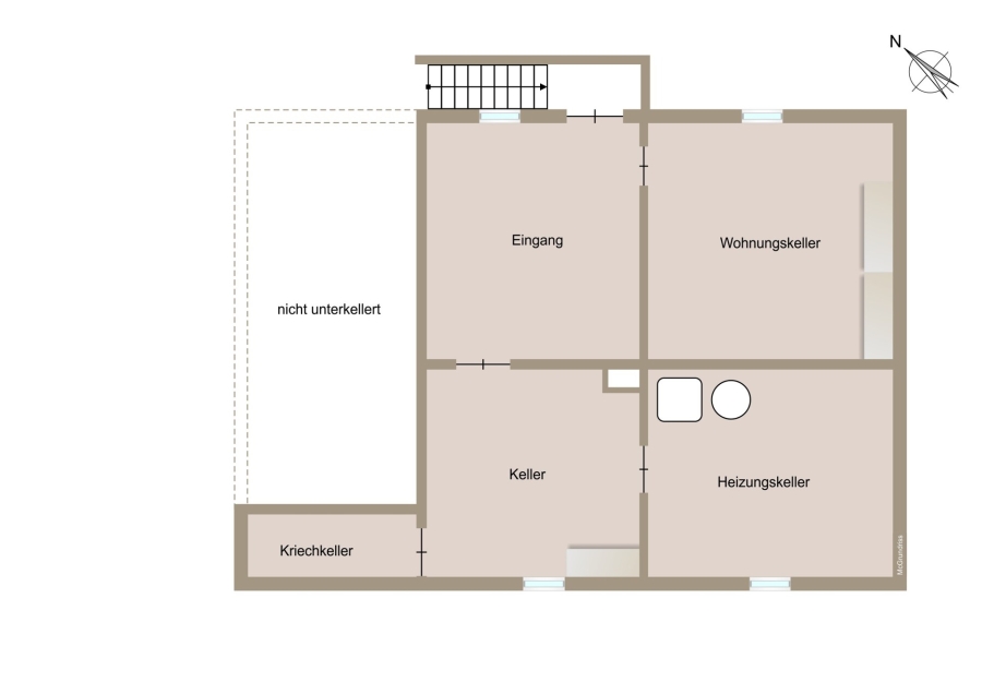
Haus Nr. 120 ist ein Siedlungshaus aus dem Jahr 1930 mit einem Anbau aus den 1970er-Jahren, verfügt über einen Keller, indem sich auch die Kellerräume für das Haus Nr. 122 befinden und wird über eine Gasheizung aus 2003 beheizt. Die Erdgeschosswohnung bietet 3 Zimmer auf ca. 68 m², ist für 510 € monatlich seit 2020 vermietet und ausgestattet mit Wannenbad, erneuerter Küche, Kunststofffenstern sowie einem Mix aus Laminat- und Teppichboden, der Zustand ist gepflegt.
Die Dachgeschosswohnung mit 2 Zimmern und ca. 46 m² ist frei, verfügt über eine Kleinküche, Wannenbad, Laminat und Kunststofffenster. Diese Wohnung kann auch vermietet übergeben werden (450€).
Haus Nr. 122 ist ein Zweifamilienhaus aus dem Jahr 1999 mit rückwärtigem Gartenbereich und Gasheizung aus 2013.
Die vermietete Erdgeschosswohnung (600 €) verfügt über 3 Zimmer und ca. 69 m² mit offener Küche, Laminat, Kunststofffenstern, Wannenbad, Abstellraum sowie einer überdachten Terrasse, eigenem Garten und ist seit 2005 vermietet.
Die Dachgeschosswohnung ist seit 2019 vermietet (640 €) und bietet 3 Zimmer auf ca. 63 m², eine offene Küche, Balkon, Laminat, Kunststofffenster, Wannenbad und Abstellraum.
Die möglichen Gesamtmieteinnahmen betragen insgesamt € 2.200,- im Monat und € 26.400,- p.a
Ausstattung
- 4 Wohneinheiten (davon 3 aktuell vermietet)
- 4 Stellplätze
- Gasheizung
- €26.400,- Mieterträge p.a.
- Teilweise Indexmietverträge
- Insgesamt 246 m² Wohnfläche
Energieausweis Haus Nr. 120:
Baujahr Immobilie: 1935 Anbau Anfang 1970
Energieausweis: Verbrauchsausweis
Gültig bis: 06.01.2029
Baujahr Wärmerzeuger: 2003
wesentlicher Energieträger: Erdgas
Energieeffizienzklasse: H
Energieausweisdatum: 07.01.2019
Lage
Das Objekt befindet sich in zentraler Lage von Maschen-Heide.
Maschen gehört zur Gemeinde Seevetal und liegt südlich von Hamburg am Nordrand der Lüneburger Heide und somit im Pendlereinzugsgebiet des Hamburger Großraums.
Mit dem Zug erreichen Sie den Hamburger Hauptbahnhof in ca. 15 Minuten im HVV-Tarif (Hamburger Verkehrsverbund).
Der Ort Maschen und die Gemeinde Seevetal bieten ländliche Idylle und städtischen Komfort zugleich.
Im Ortskern befinden sich Einkaufsmöglichkeiten für den täglichen und darüber hinausgehenden Bedarf. Kindergarten, Grund- und Hauptschule (fußläufig erreichbar) sind vor Ort, die Realschule und das Gymnasium befinden sich im 4 km entfernten Hittfeld oder Meckelfeld und sind mit dem Schulbus zu erreichen. Die HVV- Bushaltestelle befindet sich direkt an der Straße vor dem Haus.
Sämtliche Ärzte sowie diverse Freizeit- und Sportmöglichkeiten (Tennis, Golf) sind ebenfalls vorhanden.
Die Autobahnauffahrten zur A1 und A39 (die verbinden Lüneburg und Hamburg) sind in ca. 5 Minuten Fahrtzeit zu erreichen. Hittfeld und Ramelsloh sind ebenfalls nur wenige Minuten entfernt.
Kindergarten 1,30 km | Grundschule 700 m | Realschule 6,40 km | Gymnasium 6,20 km | Autobahn 2 km
Die ungefähre Position der Immobilie auf Google Maps ansehen (Link auf externe Website)
Sonstige Informationen
Mit diesem Exposé bieten wir Ihnen unsere Maklerdienstleistung an. Alle Angaben zur Immobilie basieren auf den uns vorliegenden Informationen des Eigentümers und wurden mit größter Sorgfalt zusammengestellt. Eine Gewähr für die Richtigkeit und Vollständigkeit übernehmen wir jedoch nicht.
Kommt durch unseren Nachweis oder unsere Vermittlung ein Kaufvertrag zustande, ist die im Exposé angegebene Provision vom Käufer zu zahlen. Diese ist mit Unterzeichnung des Kaufvertrages verdient und fällig.
Zusätzlich zum Kaufpreis sollten Sie die Erwerbsnebenkosten einkalkulieren. Diese betragen in der Regel ca. 2 % für Notar- und Gerichtskosten sowie 5 % Grunderwerbsteuer (je nach Bundesland variabel).
Verbraucherinformation gemäß § 312c BGB i. V. m. Artikel 246 EGBGB:
Diese Informationen dienen der Erfüllung unserer gesetzlichen Informationspflichten, wenn der Maklervertrag mit Schröder Immobilien, Inh. Jörg Schröder, Von-Somnitz-Ring 4a, 21423 Winsen (Luhe), ausschließlich unter Verwendung von Fernkommunikationsmitteln (z. B. Telefon, E-Mail, Online-Formular) zustande kommt.
Widerrufsbelehrung:
Widerrufsrecht
Sie haben das Recht, diesen Maklervertrag innerhalb von 14 Tagen ohne Angabe von Gründen zu widerrufen. Die Widerrufsfrist beträgt 14 Tage ab dem Tag des Vertragsschlusses. Um Ihr Widerrufsrecht auszuüben, müssen Sie uns
Schröder Immobilien
Inhaber Jörg Schröder
Von-Somnitz-Ring 4a
21423 Winsen (Luhe)
Telefon: +49 (0) 4171 88 18 11
E-Mail: info@schroederimmobilien.de
mittels einer eindeutigen Erklärung (z. B. per Brief, Fax oder E-Mail) über Ihren Entschluss, diesen Vertrag zu widerrufen, informieren. Sie können dafür ein von uns bereitgestelltes Muster-Widerrufsformular verwenden, das jedoch nicht vorgeschrieben ist.
Zur Wahrung der Widerrufsfrist reicht es aus, dass Sie die Mitteilung über die Ausübung des Widerrufsrechts vor Ablauf der Frist absenden.
Widerrufsfolgen
Wenn Sie diesen Vertrag widerrufen, haben wir Ihnen alle Zahlungen, die wir von Ihnen erhalten haben, unverzüglich und spätestens binnen 14 Tagen ab dem Tag zurückzuzahlen, an dem die Mitteilung über Ihren Widerruf bei uns eingegangen ist. Für diese Rückzahlung verwenden wir dasselbe Zahlungsmittel, das Sie bei der ursprünglichen Transaktion eingesetzt haben, es sei denn, mit Ihnen wurde ausdrücklich etwas anderes vereinbart. Haben Sie ausdrücklich verlangt, dass wir bereits während der Widerrufsfrist mit unserer Dienstleistung beginnen, so haben Sie uns einen angemessenen Betrag zu zahlen. Dieser entspricht dem Anteil der bereits erbrachten Leistungen bis zu dem Zeitpunkt, an dem Sie uns über die Ausübung des Widerrufsrechts unterrichten, gemessen am Gesamtumfang der im Vertrag vorgesehenen Dienstleistungen.
Besondere Hinweise
Ihr Widerrufsrecht erlischt vorzeitig, wenn wir die beauftragte Maklerleistung vollständig erbracht haben und Sie vor Beginn der Ausführung ausdrücklich zugestimmt sowie bestätigt haben, dass Sie Ihr Widerrufsrecht in diesem Fall verlieren (§ 356 Abs. 4 BGB).
Ende der Widerrufsbelehrung
Kontaktdaten
-
NameHerr Dipl.-Immobiliensachverst. (DIA) Jan Laubacher
-
Personennummer119963
-
FirmaSchröder Immobilien
-
AnschriftVon-Somnitz-Ring 4a
21423 Winsen (Luhe) -
E-Mail
-
Telefon
-
Telefon
-
Mobil
-
Fax00494171881833



















