Ein Stück Geschichte mit Entwicklungsperspektive!
21423 Winsen (Luhe), Mehrfamilienhaus zum Kauf
Objektdaten
-
Objekt-ID50031
-
ObjekttypenHaus, Mehrfamilienhaus
-
Adresse21423 Winsen (Luhe)
-
Etagen im Haus2
-
Wohnfläche ca.298 m²
-
Nutzfläche ca.524 m²
-
Grundstück ca.1.732 m²
-
Zimmer9
-
HeizungsartZentralheizung
-
Wesentlicher EnergieträgerGas
-
Baujahr1875
-
Zustandgepflegt
-
Käuferprovision3,57 % zzgl. MwSt.
-
Kaufpreis595.000 EUR
Ausstattung / Merkmale
- ✓ Altbau
- ✓ Denkmalgeschützt
- ✓ Einliegerwohnung
Objektbeschreibung
Beschreibung
Herzlich willkommen in der beliebten Ortschaft Hoopte! Auf einem 1.732 m² großen Grundstück präsentiert sich hier ein beeindruckendes denkmalgeschütztes Anwesen direkt am Elbdeich, schräg gegenüber vom Fähranleger Hoopte.
Der Obsthof wurde als massives Zweiständerhaus um 1875 erbaut und 1899 durch einen Anbau erweitert. Besonders hervorzuheben sind die baujahrtypischen Verzierungen an den Giebeln, die Sprossenfenster, die wunderschön erhaltenen Holztüren im Inneren sowie die historische Haustür.
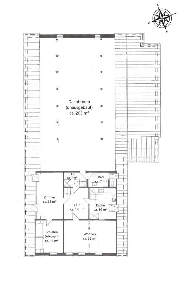
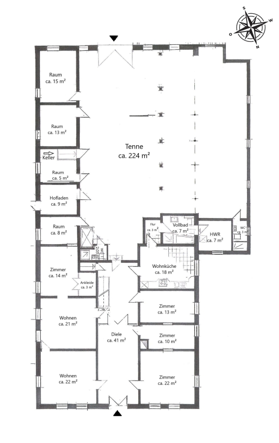
Im vorderen Teil des Hauses befinden sich zwei Wohneinheiten, die den zukünftigen Eigentümern unmittelbar zur Verfügung stehen: Wohnung Nr. 1 im Erdgeschoss, 6 Zimmer mit ca. 190 m² und Wohnung Nr. 2 im Dachgeschoss, 4 Zimmer mit ca. 110 m² Wohnfläche.
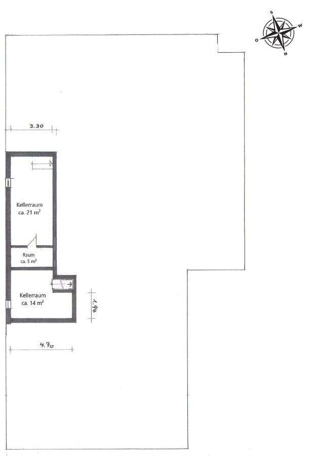
Das Haus verfügt über einen Teilkeller, der früher als Kühlkeller genutzt wurde.
Der hintere Wirtschaftsteil, die ehemalige "Tenne" des Hofes, bietet mit fast 300 m² eine großzügige Ausbaufläche oder einen riesigen Bereich für Geschäftsideen oder auch für Hobbybastler. Zusätzlich steht ein nicht ausgebauter Dachboden mit weiteren 200 m² zur Verfügung, der das Potenzial dieses Anwesens weiter unterstreicht.
Das Dach ist mit Faserzementplatten eingedeckt, die vermutlich noch Asbest enthalten.
Weitere Wohnungen könnten hier entstehen und Kapitalanleger können von hohen Denkmal-Abschreibungen profitieren.
Ausstattung
- zwei Wohnungen
- viel Ausbaureserve, bis zu 7 Wohneinheiten insgesamt möglich
- Denkmalabschreibungen möglich
- Hofladen
- Gaszentralheizung von 2020
- Sprossenfester aus Kunststoff und antike Eisenfenster
- viele historische Stilelemente
- Dachplatten aus Faserzementplatten (Eternit)
- große Tenne
- Wintergarten
- Elbblick aus den oberen Etagen
- Stellplätze
Lage
Der beliebten Winsener Ortsteil Hoopte liegt in unmittelbarer Nähe zum traditionsreichen Stöckter Hafen. Maritimer & ländlicher Charme gehört zu Hoopte dazu. Auf der einen Seite die Elbe, Hafen und der Fähranleger nach Hamburg - auf der anderen Seite Wohnhäuser, Landwirtschaft und Wiesen.
Im Ort gibt es verschiedene Hofläden, ein Hofcafé und andere Gastronomiebetriebe. Frische Fischbrötchen, Äpfel oder Erdbeeren direkt vom Hof und selbstgekochte Marmelade aus heimischen Früchten... in Hoopte gibt es das. Ein kleiner Laden, der Frühstücksbrötchen sowie ein kleines Lebensmittelangebot führt, liegt nur 2 Minuten zu Fuß entfernt.
Aufgrund der landschaftlich reizvollen Umgebung finden Sie hier Ruhe, Entspannung und abwechslungsreiche Natur. Schafe blöken auf dem Elbdeich und in den Feldern leben Hasen und Rehe.
Die Kreisstadt Winsen mit Bahnhof und zwei Autobahnanschlüssen (A39), ist bequem in nur wenigen Minuten zu erreichen. Ein Bus (Linie 149 / HVV) fährt nach Winsen und am Deich entlang nach Harburg. Aufgrund der hervorragenden Infrastruktur sind Hamburg und Lüneburg schnell zu erreichen.
Die ungefähre Position der Immobilie auf Google Maps ansehen (Link auf externe Website)
Sonstige Informationen
Sie möchten besichtigen? Rufen Sie uns gern an: 04171 - 88 18 77
Ihr Ansprechpartner: Andreas Bardowicks
Mit diesem Exposé bieten wir Ihnen unsere Maklerdienste an. Alle Angaben zum Objekt haben wir nach bestem Wissen aufgrund der uns zur Verfügung stehenden Auskünfte des Eigentümers gemacht. Eine Haftung für die Richtigkeit und Vollständigkeit können wir nicht übernehmen.
Im Falle eines durch unseren Nachweis, bzw. unsere Vermittlung zustande gekommenen Vertragsabschlusses, ist der Käufer verpflichtet eine Provision in angegebener Höhe zu zahlen. Diese Provision ist mit Abschluss des Kaufvertrages verdient und fällig.
Die ERWERBSNEBENKOSTEN in Höhe von ca. 2 % Notar- und Gerichtskosten sowie 5 % Grunderwerbsteuer sollten bei der Finanzierung mit einkalkuliert werden.
Verbraucherinformation gemäß Fernabsatzgesetz:
Diese Informationen dienen der Erfüllung von Informationspflichten aufgrund gesetzlicher Vorschriften, wenn die Beteiligung von Schröder Immobilien, Inh. Jörg Schröder, Von-Somnitz-Ring 4a, 21423 Winsen (Luhe) ausschließlich unter Verwendung von Fernkommunikationsmitteln zustande kommt. Fernkommunikationsmittel und Kommunikationsmittel, die zur Anbahnung oder zum Abschluss eines Vertrages zwischen einem Verbraucher und einem Unternehmer, ohne gleichzeitige körperliche Anwesenheit der Vertragsparteien eingesetzt werden, können insbesondere Briefe, Kataloge, Telefonanrufe, Telekopien, E-Mails sowie Rundfunk, Tele- oder Mediendienste sein.
Widerrufbelehrung (Fernabsatz):
Widerrufsrecht
Sie können Ihre Vertragserklärung innerhalb von 14 Tagen ohne Angabe von Gründen in Textform (z.B. Brief, Fax, Email) widerrufen. Die Frist beginnt nach Erhalt dieser Belehrung in Textform, jedoch nicht vor Vertragsschluss und auch nicht vor Erfüllung unserer Informationspflichten gemäß Artikel 246 § 2 in Verbindung mit § 1 Abs. 1 und 2 EGBGB sowie unserer Pflichten gemäß § 312 g Abs. I Satz 1 BGB in Verbindung mit Artikel 246 § 3 EGBGB. Zur Wahrung der Widerrufsfrist genügt die rechtzeitige Absendung des Widerrufs.
Der Widerruf ist zu richten an:
Schröder Immobilien,
Inhaber Jörg Schröder
Von-Somnitz-Ring 4a
21423 Winsen (Luhe)
Tel.: +49 (0) 4171 88 18 11
Fax: +49 (0) 4171 88 18 33
E-Mail: info@schroederimmobilien.de
Widerrufsfolgen:
Im Falle eines wirksamen Widerrufs sind die beiderseits empfangenen Leistungen zurück zu gewähren und ggf. gezogene Nutzungen (z.B. Zinsen) herauszugeben. Können Sie uns die empfangene Leistung ganz oder teilweise nicht oder nur in verschlechtertem Zustand zurückgewähren, müssen Sie uns insoweit ggf. Wertersatz leisten. Dies kann dazu führen, dass Sie die vertraglichen Zahlungsverpflichtungen für den Zeitraum bis zum Widerruf gleichwohl erfüllen müssen. Verpflichtungen zur Erstattung von Zahlungen müssen innerhalb von 30 Tagen erfüllt werden. Die Frist beginnt für Sie mit der Absendung Ihrer Widerrufserklärung, für uns mit deren Empfang.
Besondere Hinweise
Ihr Widerrufsrecht erlischt vorzeitig, wenn der Vertrag von beiden Seiten auf Ihren ausdrücklichen Wunsch vollständig erfüllt ist, bevor Sie Ihr Widerrufsrecht ausgeübt haben.
Ende der Widerrufsbelehrung
Kontaktdaten
-
NameHerr Andreas Bardowicks
-
FirmaSchröder Immobilien
-
AnschriftVon-Somnitz-Ring 4a
21423 Winsen (Luhe) -
E-Mail
-
Telefon
-
Telefon
-
Mobil
-
Fax00494171881833

















